/
【外観】
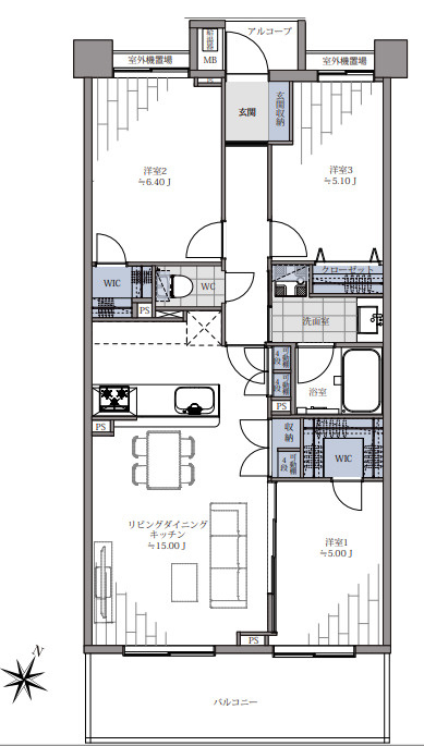
- 物件名
- フェアロージュ南雪谷
- 価格
- 9,180万円
- 築年月
- 2000年1月(築26年)
- 総戸数
- 1戸
- 設備条件
-
- エレベーター
- オートロック
- 宅配ボックス
- 設備(その他)
-
-
-
- 駐車場/月額
- 空有/-
- 土地権利
- 所有権
- 国土法届出
- 不要
- 用途地域
- 第一種中高層住居専用
- 戸数
- 1戸 / -
- 管理形態
- 管理会社に全部委託
- 管理員の勤務形態
- 日勤
- 管理会社
- (株)日鉄コミュニティ
- 取引態様
- 仲介
- 引渡し
- 相談
-
スーパー
東急ストア 上池台店
1574m(20分)
フェアロージュ南雪谷の基本情報
フェアロージュ南雪谷の詳細情報
フェアロージュ南雪谷で募集中の物件
周辺施設
近隣の物件
よく見られている物件
フェアロージュ南雪谷

