【外観】
- 専有面積
- 64.53㎡
- 築年月
- 1998年3月(築27年)
-
TVモニタ付きインターホン
- 管理費
- 10,830円
- 修繕積立金
- 12,910円
- 修繕積立基金
- -
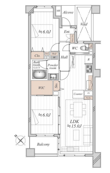
- 間取り / 詳細
- 2LDK
- 向き
- 南西
- 専有面積
- 64.53㎡
- バルコニー面積
- 4.69㎡
- その他面積
- -
-
- - 所在階 / 階建て
- 2階 / 3階建 地下1階
- 建物構造
- 鉄筋コンクリート
- 築年月
- 1998年3月(築27年)
- 種別
- 中古マンション
- 土地権利
- 所有権
- 土地
(敷金 / 保証金) - - / -
- 国土法届出要否
- 不要
- 接道状況
- -
- 用途地域
- 第一種低層住居専用
- 地勢
- -
- 都市計画
- -
- 現況
- 空家
- 引渡し
- 相談
- 取引態様
- 仲介
- 棟総戸数
- 23戸
- 管理形態
- 管理会社に全部委託
- 管理会社 /
管理組合有無 - 三菱地所コミュニティ株式会社 / 有
- 取引条件の
有効期限 - 2026年02月19日
- 設備条件
-
- 電気有 / 食器洗い乾燥機 / 追焚機能浴室 / 温水洗浄便座 / 床暖房 / TVモニタ付インターホン
- 設備(その他)
-
-
-
- 物件番号
- 99486587
- 管理コード
- -
- 建築確認番号
- -
- 情報更新日
- 2026年02月05日
- 次回更新予定日
- 2026年02月19日
- 取扱会社
-
- 東急沿線の仲介 武蔵小杉店
- 神奈川県川崎市中原区小杉町3丁目1301 武蔵小杉東急スクエア 1階
- TEL:0120-468-109
- 国土交通大臣 (12) 第2621号
-
スーパー
東急ストア中目黒本店
606m(8分)
-
警察
目黒警察署中目黒駅前交番
760m(10分)
-
コンビニエンスストア
セブンイレブン 上目黒1丁目店
814m(11分)
-
市役所・区役所
目黒区役所(目黒区総合庁舎)
1011m(13分)
-
郵便局
渋谷桜丘郵便局
1191m(15分)
-
ドラッグストア
ココカラファイン 渋谷サクラステージ店
1575m(20分)
-
公園
世田谷公園
1706m(22分)
- 月々の支払額
- 9.6円
- 購入希望物件価格
-
万円
- 頭金
-
万円
- 金利
-
%
- 返済額(ボーナス1回分)
-
万円
- 返済期間
-
年
物件の特徴
セールスポイント
こだわりポイント満載のファミールヒルズ目黒東山。こちらの物件は南西向きの物件です。向きをこだわる方へ。ファミリーからニーズが高くてご好評を頂いている2LDK物件です。駅から徒歩8分圏内に立地しています。新居をお求めなら、地域に詳しい当社にご依頼下さい。お客様のこだわりやご要望などがあれば、メール又はお電話から当社までお申し付けください。
基本情報
設備条件
その他
周辺施設
支払いシミュレーション
※ボーナスは自動で年2回分で計算されます。
近隣の物件
ファミールヒルズ目黒東山
1億5,900万円
10,830円
2LDK(64.53㎡)

