/
【外観】
- 専有面積
- 69.30㎡
- 築年月
- 1973年2月(築53年)
-
浴室乾燥機
- 管理費
- 11,300円
- 修繕積立金
- 15,810円
- 修繕積立基金
- -
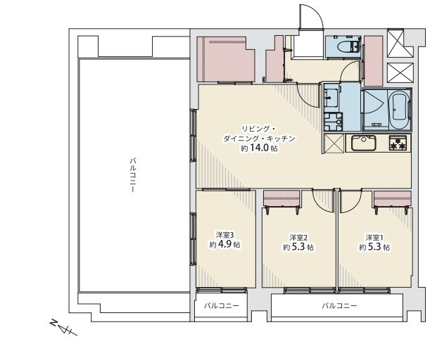
- 間取り / 詳細
- 3LDK
LDK 14.0帖 1室/洋室 5.3帖 2室/洋室 4.9帖 1室 - 向き
- -
- 専有面積
- 69.30㎡
- バルコニー面積
- 36.05㎡
- その他面積
- -
-
- - 所在階 / 階建て
- 4階 / 6階建
- 建物構造
- 鉄骨鉄筋コンクリート
- 築年月
- 1973年2月(築53年)
- 種別
- 中古マンション
- 駐車場 /
月額料金 - 空無 -
- 土地権利
- 所有権
- 土地
(敷金 / 保証金) - - / -
- 国土法届出要否
- 不要
- 接道状況
- -
- 用途地域
- 第一種住居
- 地勢
- -
- 都市計画
- -
- 現況
- 空家
- 引渡し
- 相談
- 取引態様
- 仲介
- 棟総戸数
- 72戸
- 管理形態
- 管理会社に全部委託
- 管理会社 /
管理組合有無 - 長谷工コミュニティ / 有
- 取引条件の
有効期限 - 2026年02月12日
- 設備条件
-
- 電気有 / 食器洗い乾燥機 / システムキッチン / 追焚機能浴室 / 浴室乾燥機 / 温水洗浄便座
- 設備(その他)
-
-
-
- 物件番号
- 100047898
- 管理コード
- -
- 建築確認番号
- -
- 情報更新日
- 2026年02月05日
- 次回更新予定日
- 2026年02月12日
- 取扱会社
-
- 東急沿線の仲介 武蔵小杉店
- 神奈川県川崎市中原区小杉町3丁目1301 武蔵小杉東急スクエア 1階
- TEL:0120-468-109
- 国土交通大臣 (12) 第2621号
- 月々の支払額
- 9.6円
- 購入希望物件価格
-
万円
- 頭金
-
万円
- 金利
-
%
- 返済額(ボーナス1回分)
-
万円
- 返済期間
-
年
物件の特徴
セールスポイント
中古マンションなら、物件の購入もスムーズです。駅まで徒歩11分の場所にある物件です。専有面積69.3平米の物件は住み心地が良いと評判です。物件の周辺に駅が2つあるので通勤・通学がラクラク快適です。不動産購入は人生で一度あるかないかの大きな買い物です。失敗したくないのであれば、経験豊富なプロにお任せください。メールもしくはお電話からご連絡をお待ちしております。
基本情報
設備条件
その他
支払いシミュレーション
※ボーナスは自動で年2回分で計算されます。
近隣の物件
パラシオン横浜
4,380万円
11,300円
3LDK(69.30㎡)

