/
【外観】外観も気になるポイント
- 物件名
- 多摩川ハイム3号棟
- 価格
- 7,480万円
- 築年月
- 1982年4月(築43年)
- 総戸数
- 272戸
- 設備条件
-
- 設備(その他)
-
-
-
- 駐車場/月額
- 空有/24,000円
- 土地権利
- 所有権
- 国土法届出
- 不要
- 用途地域
- 工業
- 戸数
- 272戸 / -
- 管理形態
- 管理会社に全部委託
- 管理員の勤務形態
- 日勤
- 管理会社
- 住商建物株式会社
- 取引態様
- 仲介
- 引渡し
- 相談
多摩川ハイム3号棟の基本情報
多摩川ハイム3号棟の詳細情報
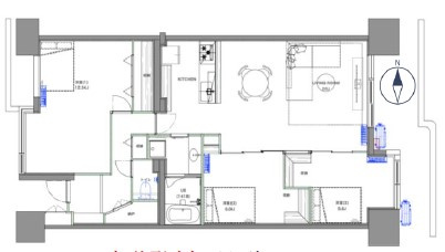
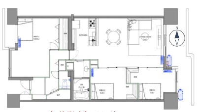
多摩川ハイム3号棟のコメント(おすすめポイント)
ぜひ一度見ていただきたい、「多摩川ハイム3号棟」です。多くの方に好評な、清潔感のある室内が魅力の中古マンションです。13階建てのイチオシの物件。駅まで歩いて14分ほどの物件です。東急多摩川線武蔵新田近くの不動産情報をお求めなら、大田区に詳しい当社にお問い合わせ下さい。お客様のこだわりに合わせた物件情報をご提供いたします。
多摩川ハイム3号棟で募集中の物件
近隣の物件
よく見られている物件
多摩川ハイム3号棟

