/
【外観】外観も気になるポイント
- 価格
- 7,830万円
- 間取り
- 3LDK
- 向き
- 西
- 専有面積
- 98.14㎡
- 築年月
- 1982年4月(築43年)
- 管理費
- 18,840円
- 修繕積立金
- 6,260円
- 修繕積立基金
- -
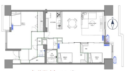
- 間取り / 詳細
- 3LDK
LDK 20.0帖 1室/洋室 12.3帖 1室/洋室 6.0帖 1室/洋室 5.6帖 1室 - 向き
- 西
- 専有面積
- 98.14㎡
- バルコニー面積
- 16.69㎡
- その他面積
- -
-
- - 所在階 / 階建て
- 8階 / 13階建
- 建物構造
- 鉄骨鉄筋コンクリート
- 築年月
- 1982年4月(築43年)
- 種別
- 中古マンション
- 駐車場 /
月額料金 - 空有 24,000円
- 土地権利
- 所有権
- 土地
(敷金 / 保証金) - - / -
- 国土法届出要否
- 不要
- 接道状況
- -
- 用途地域
- 工業
- 地勢
- -
- 都市計画
- -
- 現況
- 空家
- 引渡し
- 相談
- 取引態様
- 仲介
- 棟総戸数
- 272戸
- 管理形態
- 管理会社に全部委託
- 管理会社 /
管理組合有無 - 住商建物株式会社 / 有
- 取引条件の
有効期限 - 2026年02月19日
- 設備条件
-
- 電気有 / 角部屋
- 設備(その他)
-
-
-
- 物件番号
- 99490148
- 管理コード
- -
- 建築確認番号
- -
- 情報更新日
- 2026年02月05日
- 次回更新予定日
- 2026年02月19日
- 取扱会社
-
- 東急沿線の仲介 武蔵小杉店
- 神奈川県川崎市中原区小杉町3丁目1301 武蔵小杉東急スクエア 1階
- TEL:0120-468-109
- 国土交通大臣 (12) 第2621号
- 備考
- 家から152mのところにはファミリック診療所があります。東武ストア 下丸子店まで327mです。駅から徒歩14分の物件です。不動産のことでお悩みなら、先ずは当社をお尋ねください。経験豊富なプロのスタッフがお客様のお悩みを解消いたします。ご連絡はメール又はお電話にてお待ちしております。
- 月々の支払額
- 9.6円
- 購入希望物件価格
-
万円
- 頭金
-
万円
- 金利
-
%
- 返済額(ボーナス1回分)
-
万円
- 返済期間
-
年
セールスポイント
ファミリック診療所まで徒歩2分と近いため、緊急時にもすぐに病院まで行けます。13階建てのオススメの建物がコチラです。利便性の高い角住戸は夏を快適に涼しく過ごす事が可能です。新居を構えるなら、こだわりの条件があるはずです。当社は、お客様のご要望にお応えしますので、こだわりやご希望などお気軽にお問い合わせ下さい。
ポイント
担当者のコメント
家からファミリック診療所まで152mです。快適な生活をお約束する角住戸で涼しく快適に生活しましょう。パーキングの料金は月額24000円でございます。防犯面も生活面も魅力ある中古マンションです。不動産のことで確認したいことがあるなら、メール又はお電話にてご連絡ください。当社は豊富な経験と知識を持っているので、丁寧にお答えします。
基本情報
設備条件
その他
支払いシミュレーション
※ボーナスは自動で年2回分で計算されます。
近隣の物件
多摩川ハイム3号棟
7,830万円
18,840円
3LDK(98.14㎡)

