【外観】外観パース ※完成予想CGにつき実際とは異なる可能性があります
- 物件名
- 川崎市宮前区南野川2丁目 新築戸建
- 価格
- 4,480万円~4,680万円
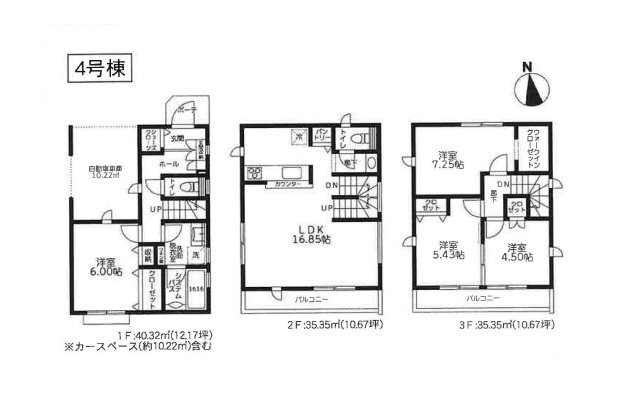
- 建物面積
- 110.95㎡~113.68㎡
- 土地面積
- 19.65坪(64.97㎡~64.98㎡)
- 築年月
- 2026年5月(予定)
- 総戸数
- -
- 設備条件
-
- 設備(その他)
-
-
アルミ樹脂複合サッシ 網戸全窓標準 室内一部アクセントクロス
- 駐車場/月額
- 有/-
- 土地権利
- 所有権
- 国土法届出
- 不要
- 用途地域
- 第一種住居
- 取引態様
- 仲介
- 引渡し
- 0008年5月中旬
-
コンビニエンスストア
ファミリーマート 川崎南野川店
100m(2分)
-
スイーツ
シャトレーゼ 野川店
133m(2分)
-
ドラッグストア
クリエイトSD(エス・ディー) 川崎南野川店
205m(3分)
-
小学校
南野川小学校
371m(5分)
-
公園
東山田公園
587m(8分)
-
公園
野川ふれあいの森
600m(8分)
-
コンビニエンスストア
セブンイレブン 川崎高津野川店
610m(8分)
-
コンビニエンスストア
ファミリーマート 野川南台団地前店
755m(10分)
-
保育園
ばでぃぴっころ保育園
783m(10分)
-
保育園
野川南台保育園
861m(11分)
-
ホームセンター
コーナンビーバープロ宮前野川店
1036m(13分)
-
中学校
川崎市立野川中学校
1772m(23分)
川崎市宮前区南野川2丁目 新築戸建の基本情報
川崎市宮前区南野川2丁目 新築戸建の詳細情報
川崎市宮前区南野川2丁目 新築戸建で募集中の物件
周辺施設
近隣の物件
よく見られている物件
川崎市宮前区南野川2丁目 新築戸建

