フォレストタウン平WEST 4号棟
10月20日 値下げ
4,380万円
東急田園都市線「溝の口」駅バス19分「白幡八幡前」停歩1分
東急田園都市線「宮前平」駅バス15分「白幡八幡前」停歩2分
【外観】
- 価格
- 4,380万円
- 間取り
- 3LDK+S(納戸)
- 土地面積
- 70.04㎡
- 建物面積
- 119.19㎡
- 築年月
- 2025年10月(新築)
-
室内洗濯機置場
-
TVモニタ付きインターホン
-
カウンターキッチン
-
浴室乾燥機
- 販売戸数
- 6戸
- 総戸数
- 11戸
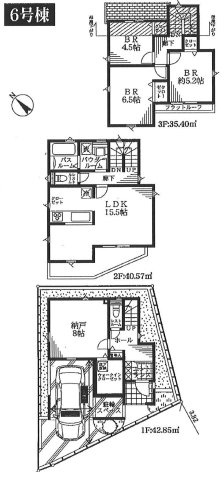
- 間取り / 詳細
- 3LDK+S(納戸)
LDK 15.5帖/洋室 6.0帖/洋室 5.7帖/洋室 4.3帖/S 7.8帖 - 向き
- -
- 建物面積(坪数)
- 119.19㎡(36.05坪)
- 土地面積(坪数)
- 70.04㎡(21.18坪)
- 建ぺい率 /
容積率 - 60%/160%
- 築年月
- 2025年10月(新築)
- 土地権利
- 所有権
- 土地
(敷金 / 保証金) - - / -
- 建物構造
- 木造 / 3階建
- 傾斜地部分面積
- -
- 路地状敷地
- -
- 私道負担面積
- -
- セットバック
- -
- 高圧線下面積
- -
- 施工会社
- -
- 用途地域
- 第一種中高層住居専用
- 地目 / 地勢
- 宅地 / -
- 接道状況
- -
- 国土法届出要否
- 不要
- 都市計画
- 市街化区域
- 総区画数 /
販売区画数 - 11区画/6区画
- 現況
- 完成済み
- その他
法令上の制限 - -
- 取引態様
- 仲介
- 引渡し
- 相談
- 取引条件の
有効期限 - 2025年12月14日
- 設備条件
-
- 室内洗濯機置場 / 都市ガス / 公営水道 / ビルトガレージ / 耐震構造 / カウンターキッチン / 浴室乾燥機 / 温水洗浄便座 / トイレ2ヶ所 / 床下収納 / ウォークインクロゼット / TVモニタ付インターホン
- 設備(その他)
-
-
-
- 物件番号
- 97430362
- 管理コード
- -
- 建築確認番号
- 第第2024SBC-確02335Y号
- 情報更新日
- 2025年11月30日
- 次回更新予定日
- 2025年12月14日
- 取扱会社
-
- 東急株式会社 青葉台事務所
- 神奈川県横浜市青葉区青葉台1丁目7番地3 青葉台駅構内
- TEL:0120-956-092
- 国土交通大臣 (12) 第2621号
- (一社)不動産流通経営協会会員
(一社)不動産協会会員
(公社)首都圏不動産公正取引協議会加盟
- 備考
- 当社は東急線沿線の不動産情報をご提供しております。
家や不動産を「売りたい」「買いたい」あなたの思いをカタチにします。
美しい時代へ ―東急グループ -
クリニック
いしだ内科外科クリニック
225m(3分)
-
スーパー
マルエツ 平二丁目店
233m(3分)
-
公園
宮ノ谷公園
265m(4分)
-
郵便局
川崎向ヶ丘郵便局
269m(4分)
-
弁当
ほっともっと 川崎平2丁目店
309m(4分)
-
コンビニエンスストア
セブン-イレブン 川崎平4丁目店
311m(4分)
-
小学校
向丘小学校
470m(6分)
-
市役所・区役所
川崎市 宮前区役所 向丘出張所
472m(6分)
-
ドラッグストア
サンドラッグ 平店
514m(7分)
-
その他
吉野家 川崎平店
542m(7分)
-
スーパー
そうてつローゼン たいら店
558m(7分)
-
家電製品
ヤマダデンキ テックランド向ヶ丘店
558m(7分)
-
中学校
平中学校
931m(12分)
- 月々の支払額
- 9.6円
- 購入希望物件価格
-
万円
- 頭金
-
万円
- 金利
-
%
- 返済額(ボーナス1回分)
-
万円
- 返済期間
-
年
物件の特徴
セールスポイント
◎雨風から車を守るビルトインガレージ
◎各部屋に収納スペースがありスッキリ片付きます
◎機能的で使いやすいシステムキッチン
◎2Fリビングは窓から明るい光が降り注ぐ快適空間
◎LDKは15帖以上のゆとりある住空間
◎住んでからも安心の24時間受付サービス
物件見学や資料請求などお気軽に『無料お問い合わせ』ボタンからご連絡ください♪
当社はしっかりサポートいたします(*^-^*)
ポイント
TVモニタ付インターホン LDK15帖以上 カウンターキッチン ウォークインクローゼット 通風良好 前面棟無
担当者のコメント
基本情報
設備条件
その他
フォレストタウン平WESTの他の物件
周辺施設
支払いシミュレーション
※ボーナスは自動で年2回分で計算されます。
近隣の物件
フォレストタウン平WEST
4,380万円
-
3LDK+S(納戸)(119.19㎡)


■2×4工法
■地震に強い家「耐震等級3」
■3F建+3LDK+納戸+ビルトインガレージ